Geräumige 4-Zi.-Eigentumswohnung mit Südbalkon
Beschreibung:
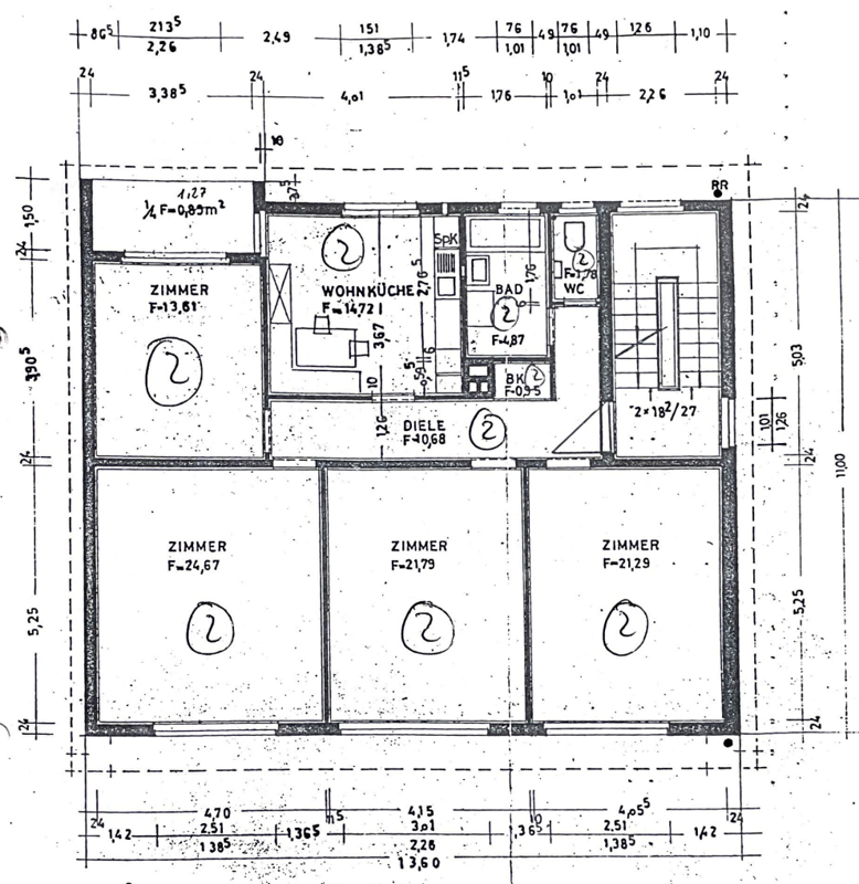
Diese sehr geräumige Wohnung befindet sich in einem 3-Familienhaus mit einer Gewerbeeinheit in einer ruhigen Nebenstraße der Singener Südstadt. Sämtliche Geschäfte des täglichen Bedarfs sind fussläufig erreichbar und auch das Singener Zentrum ist nur 5 Minuten per Bus, Auto oder Fahrrad entfernt.Die schöne Wohnung mit 111 m² Wohnfläche ist im 1. OG und verfügt über 3 große Schlafzimmer, 1 großes Wohn-/Esszimmer, 1 Ess-/Küche mit angrenzendem Südbalkon, 1 Bad mit Badewanne, Dusche und elektr. Fussbodenheizung, 1 separates WC, 1 Flur, 1 großen Kellerraum und 1 Garage.
Folgende Modernisierungen wurden duchgeführt:
- 2001 Kernsanierung der Wohnung inkl. Wasser- und Elektroleitungen
- 2001 Fenster und Rolladenaustausch
- 2001 Boden-, Wand- und Deckensanierung
- 2001 Sanierung der Bäder
- 2008 Neue Einbauküche
- 2021 Erneuerung der Heizung
Die Wohnung ist ab 01.07.2026 frei.
Ausstattung:
Energieausweis:
- A+
- A
- B
- C
- D
- E
- F
- G
- H
- Baujahr:
- 1963
- Endenergieverbrauch:
- 176 kWh/(m²a)
- Energieausweis:
- Verbrauchsausweis
- Energieeffizienzklasse:
- F
- Energieausweis gültig bis:
- 13.02.2031
- wesentlicher Energieträger:
- Öl
- Baujahr lt. Energieausweis:
- 2021
Sie wollen mehr erfahren?
Wenn Sie uns eine Nachricht über das Kontaktformular senden, melden wir uns schnellstmöglich bei Ihnen:












